Share this Listing
Location
Key Details
$714,900.00
4 Baths
Detached
2 Storey
1,954 SQ.FT
2026
Saskatoon
Description
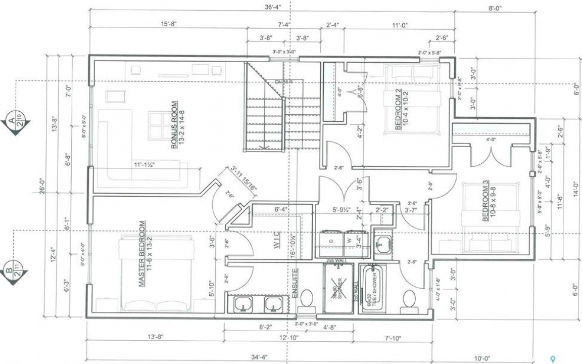
Excellent opportunity to own a fully finished 1954 Sqft two-storey home with a legal 2-bedroom basement suite in the sought-after neighborhood of Kensington! Offering 6 bedrooms and 4 bathrooms, this property features high-end finishes, modern kitchen cabinetry, and thoughtful design throughout. The main floor welcomes you with a spacious living room highlighted by a stylish feature wall and electric fireplace, complemented by extra-large windows overlooking the backyard. The open dining area includes oversized patio doors leading to the yard — perfect for entertaining. A rare main-floor bedroom and full bathroom with tiled standing shower adds flexibility for guests or multi-generational living. The second floor offers 3 bedrooms, 2 full bathrooms, and a spacious bonus room, ideal for family living. The basement features a legal 2-bedroom suite with 9-foot ceilings and large windows — a rare find in a two-storey home — providing excellent mortgage helper potential. Exterior highlights include an inviting front entry with concrete steps, front landscaping, and an oversized garage with finished concrete driveway. The home is finished with upgraded plumbing and electrical fixtures throughout. GST & PST included in purchase price (rebates to builder). If eligible, Secondary Suite Incentive (SSI) rebates to buyers. When available and if applicable to buyer First-Time Home Buyer GST rebates will be assigned to the buyer. Conveniently located close to parks and all neighborhood amenities.
Listing courtesy of Re/max Saskatoon
More Info
City: Saskatoon
Square Footage: 1954
Year Built: 2026
Style: 2 Storey
Type: House
Roof: Asphalt Shingles
Outdoor: Lawn Front
Exterior: Siding,stone,vinyl
Heating: Forced Air, Natural Gas
Appliances: Dishwasher Built In,hood Fan
Land Size: 4248.00
Total Acres: 0.0975
Water Heater: Included
Listed By: Re/max Saskatoon


