Share this Listing
Location
Key Details
$439,900.00
3 Baths
Detached
2 Storey
1,360 SQ.FT
2026
Regina
Description
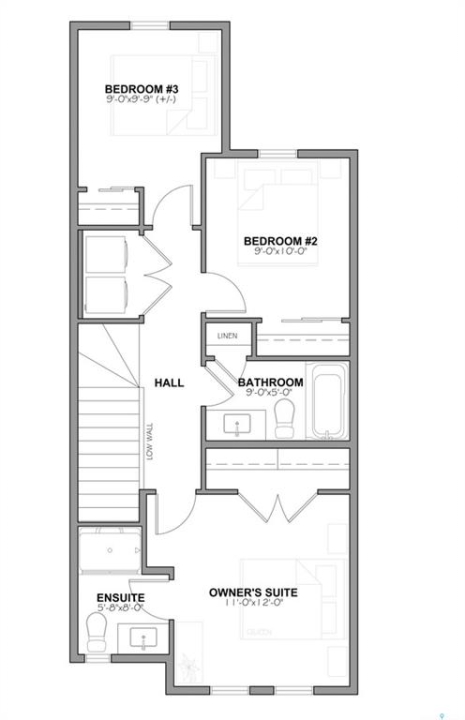
For more information, please click the "More Information" button. 1744 West Market is a brand new 1,360 sq. ft. two-storey home that blends modern design with smart functionality. The main floor features soaring 9-foot ceilings and a bright, open-concept layout, where the spacious Great Room flows effortlessly into the dining area and kitchen. The kitchen showcases a functional modern design complete with a centre island and durable finishes, while a welcoming front foyer and discreet two-piece powder room complete the level. Upstairs is dedicated to privacy and comfort. The primary retreat includes a walk-in closet and a private three-piece ensuite with a shower. Two additional well-sized bedrooms and a full four-piece bathroom provide plenty of space for family or guests. Designed with long-term value in mind, this home offers a strong investment advantage from day one. It potentially can qualify for the SSI Grant, possibly providing a 35% rebate on suite construction costs, and features a separate side entrance already installed for private access. The basement is unfinished but purpose-built with egress windows and plumbing rough-ins for a future kitchen and bathroom, making it ideal for a secondary suite. The exterior includes a rear parking pad with lane access, ready for your future garage, and is ideally located just steps from Westerra's walking paths and parks. Estimated completion date is May 1, 2026. Renderings and illustrative photos are for reference only.
Listing courtesy of Easy List Realty
More Info
City: Regina
Square Footage: 1360
Year Built: 2026
Style: 2 Storey
Type: House
Roof: Fiberglass Shingles
Outdoor: Lawn Front
Exterior: Stone,vinyl
Heating: Forced Air, Natural Gas
Features Interior: Heat Recovery Unit,sump Pump
Land Size: 2799.00
Total Acres: 0.0643
Water Heater: Included
Listed By: Easy List Realty


