Share this Listing
Location
Key Details
$545,000.00
4 Baths
Detached
2 Storey
1,500 SQ.FT
2026
Saskatoon
Description
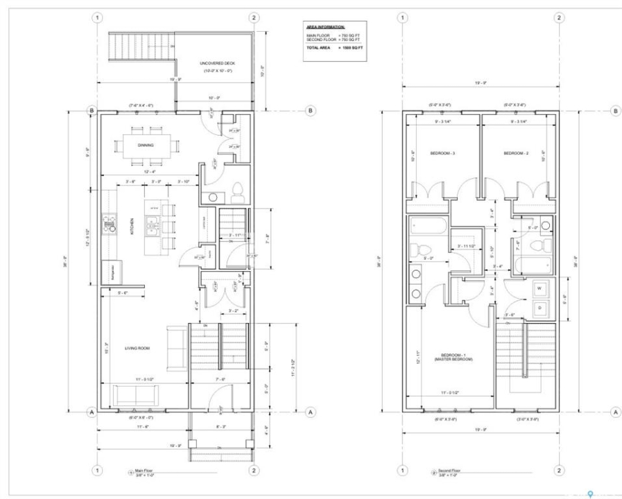
Welcome to this beautifully designed 1,500 sq. ft. two-storey home featuring a modern layout and thoughtful details throughout. The main floor offers a welcoming entry landing, a convenient two-piece bath, spacious living and dining areas, and a bright kitchen with direct access to the deck—perfect for entertaining. Upstairs, the primary bedroom boasts a 4 piece ensuite and walk-in closet, complemented by two additional bedrooms, a four-piece bath, and the convenience of second-floor laundry. The basement includes a fully self-contained two-bedroom legal suite, ideal for extended family or rental income. A detached double-car garage completes this exceptional property.
Listing courtesy of Boyes Group Realty Inc.
More Info
City: Saskatoon
Square Footage: 1500
Year Built: 2026
Style: 2 Storey
Type: House
Roof: Asphalt Shingles
Outdoor: Deck
Exterior: Stucco,other
Heating: Baseboard, Electric, Forced Air, Natural Gas
Appliances: Dishwasher Built In,dryer,fridge,garage Door Opnr/control(s),hood Fan,microwave Hood Fan,stove,washer
Land Size: 3411.00
Total Acres: 0.0783
Water Heater: Included
Water Softener: Not Included
Listed By: Boyes Group Realty Inc.


