Share this Listing
Location
Key Details
$499,900.00
1 Baths
Detached
Bungalow
948 SQ.FT
1950
Regina Beach
Description
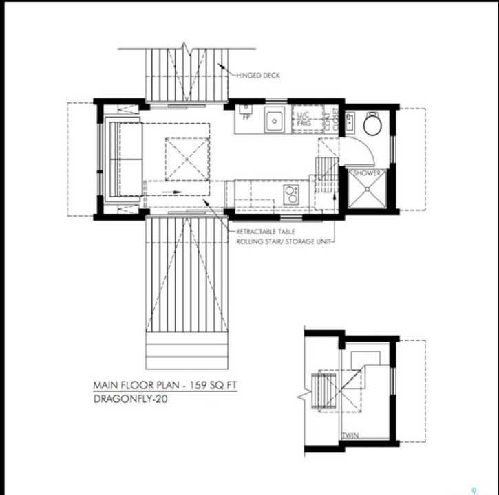
Unique opportunity for a four season lake property located on a quiet crescent with natural gas, plus a custom built "Tiny Home" for additional rental income. Main home includes functional kitchen. Living-room with patio doors to deck. Three bedrooms, updated four piece bath and sun room which is currently setup as a dining area. Seller states exterior was redone with 1.5" styrofoam insulation. Natural gas furnace and fireplace, plus supplemental electric heaters. Natural gas fireplace. Newer garage. Crawlspace has been spray foamed. DragonFly Tiny House This accessory building was completely permitted by the Township and placed on the property in mid-June 2018. It is completely self-contained with propane heater, a propane cook top, 3-way fridge (runs on propane, 12V or 110V power), kitchen sink, hot water heater (electric 3 gallon), and three-piece bathroom with full shower. It has a pull out couch and a loft area (sleeps 3 adults very comfortably). The DragonFly Tiny House was designed by renowned architect, John Robinson of Robinson Residential in Regina. It is built with SIP panels, that provide an R40 insulation rating. It is 159 sq. ft. with ample windows and skylights and main deck area. The tiny house was outfitted with Nest Temperature Sensors, motion sensor light, key lock box and all smart house light switches (that can be remote controlled).
Listing courtesy of C&c Realty
More Info
City: Regina Beach
Square Footage: 948
Year Built: 1950
Style: Bungalow
Type: House
Roof: Asphalt Shingles
Outdoor: Deck, Firepit, Garden Area, Partially Fenced
Exterior: Siding
Heating: Baseboard, Electric, Forced Air, Natural Gas
Features Interior: 220 Volt Plug,air Conditioner (wall),underground Sprinkler
Appliances: Dishwasher Built In,fridge,hot Tub,microwave Hood Fan,reverse Osmosis System,shed(s),stove,washer,window Treatment
Land Size: 7500.00
Total Acres: 0.1722
Water Heater: Included
Water Softener: Not Included
Listed By: C&c Realty


