Share this Listing
Location
Key Details
$461,700.00
3 Baths
Detached
2 Storey
1,341 SQ.FT
2025
Regina
Description
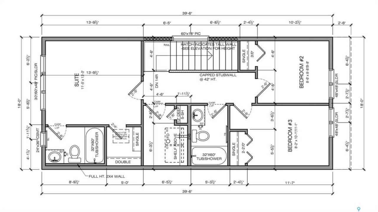
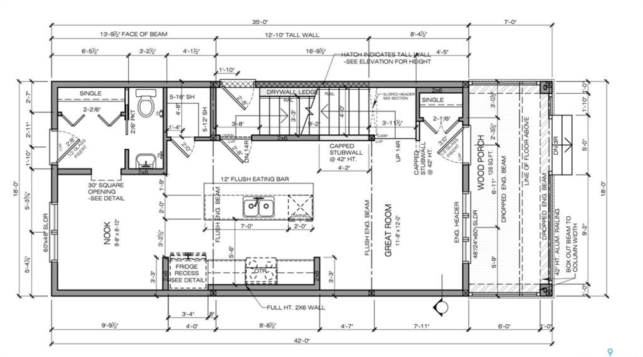
Meet Homes by Dream's Noah that's under construction at 3148 Green Turtle Road in Eastbrook. Walking up to this brand new 1,341 sq. ft. home, you'll be greeted by a spacious east facing verandah. The open concept main floor includes a front facing living room, centralized kitchen, including an eat up island, spacious pantry and dining room. The kitchen features a large centralized island that can accommodate seating, quartz countertops, ceramic tile backsplash & soft close to the doors & drawers. There's a separate mudroom area and a 2 piece bath at the rear of the home. The 2nd floor consists of a nice size primary bedroom, ensuite and walk in closet. The 2nd floor also includes 2 additional bedrooms at the front of the home, a 4 piece bath and a laundry room that's generous in size. There's a side entry door to the basement and the basement is unfinished and ready for future development. This home also includes a 20'x22' detached garage, front yard landscaping & a DMX foundation wrap. Noah is located near shopping, restaurants, an elementary school, walking paths, parks & more.
Listing courtesy of Re/max Crown Real Estate
More Info
City: Regina
Square Footage: 1341
Year Built: 2025
Style: 2 Storey
Type: House
Roof: Asphalt Shingles
Outdoor: Lawn Front
Exterior: Siding,vinyl
Heating: Forced Air, Natural Gas
Features Interior: Heat Recovery Unit,sump Pump
Appliances: Garage Door Opnr/control(s),microwave Hood Fan
Land Size: 3013.00
Total Acres: 0.0692
Water Heater: Included
Listed By: Re/max Crown Real Estate


