Share this Listing
Location
Key Details
$19,900.00
Carlyle
Description
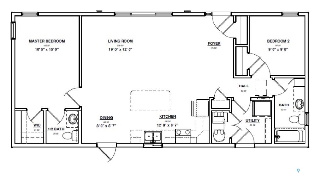
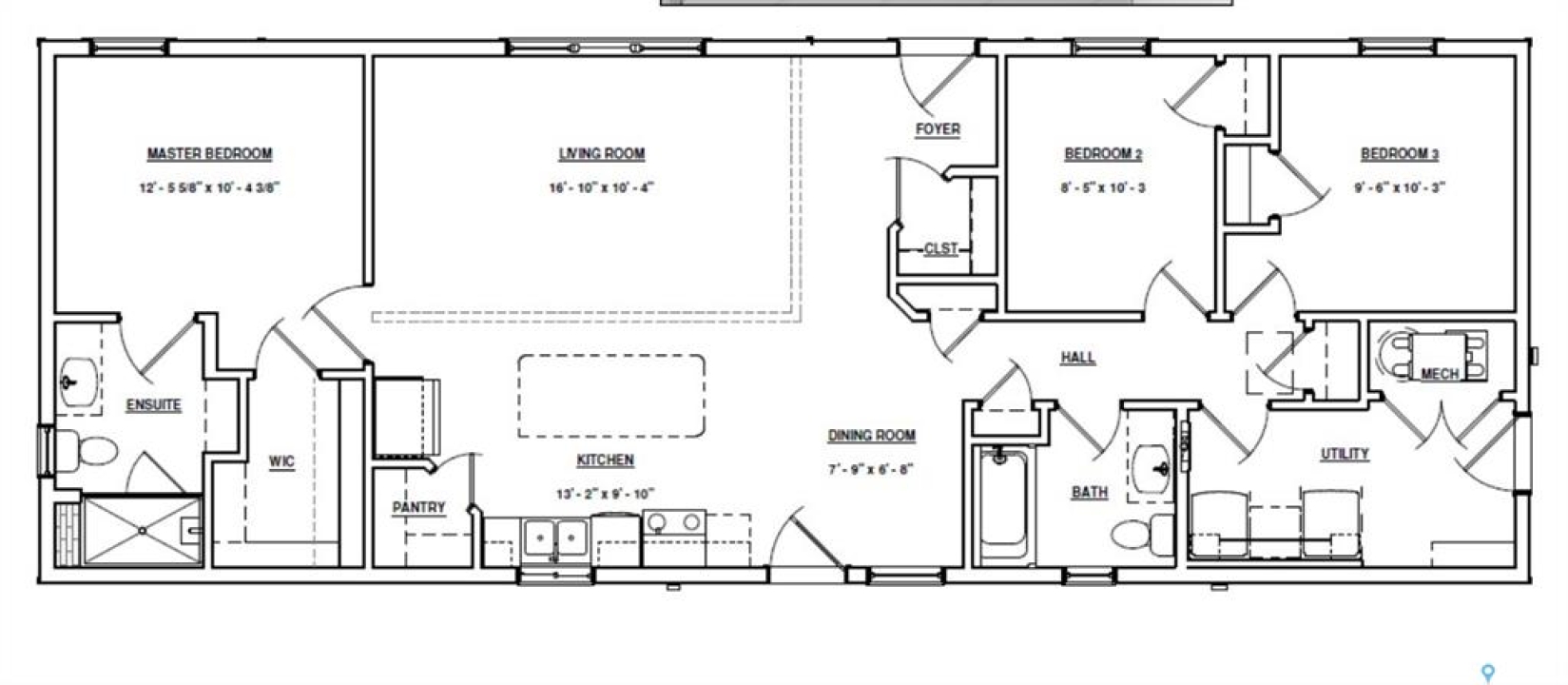
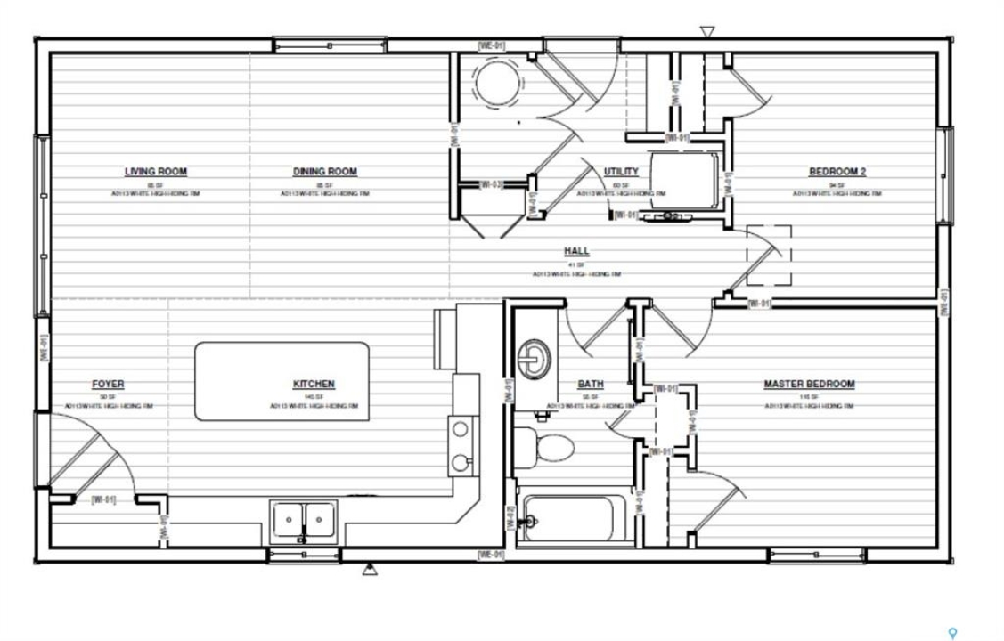
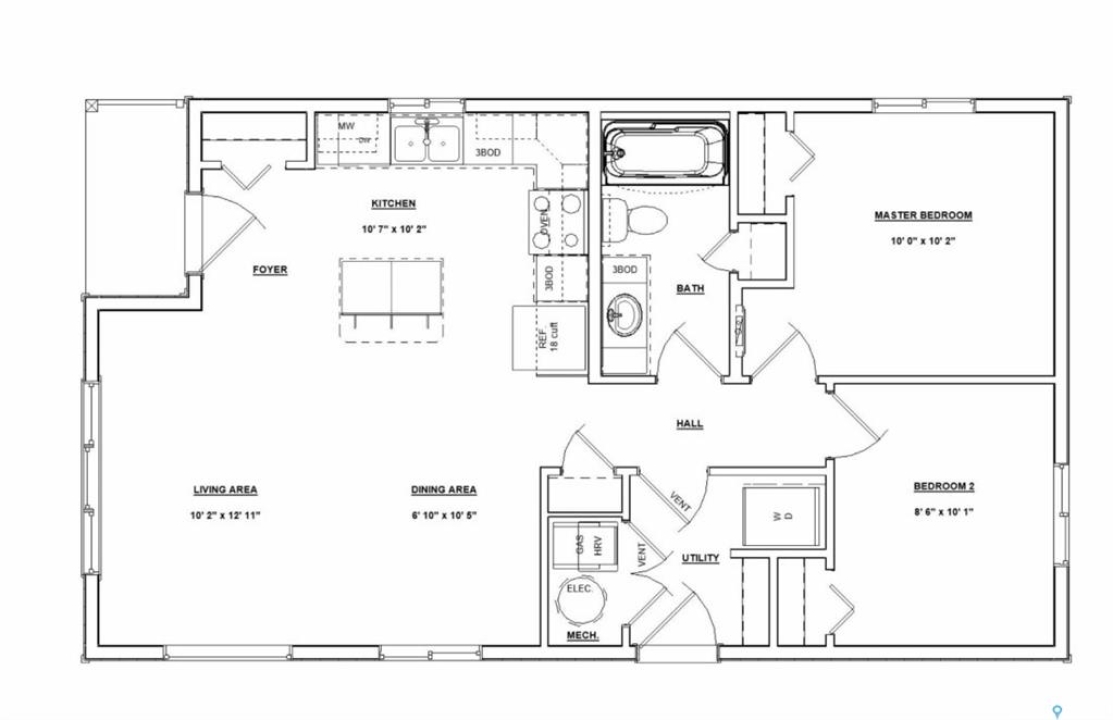
209 - 1st St West - LOCATION LOCATION - This 50 x 120' Residential R2 lot presents a great opportunity to build your home at a great location with walking distance to all the amenities offered in Carlyle. For the investment minded buyer R2 zoning allows a duplex property which would answer to the need of residential rental housing in Carlyle providing a respectable return on investment. Or a single one level modular would answer the need for an affordable starter or retirement home. Options are plenty, Services are all in vicinity for affordable connection. ATTACHED PICTURES INCLUDE SAMPLE PLANS OF MODULAR HOMES THAT COULD ACCOMODATE A QUICK TURN AROUND FOR YOUR NEEDS... Contact realtors for more info.
Listing courtesy of Performance Realty
More Info
City: Carlyle
Outdoor: Trees/shrubs
Land Size: 6000.00
Topography: Flat
Total Acres: 0.1377
Listed By: Performance Realty


