Share this Listing
Location
Key Details
$99,900.00
2 Baths
Detached
One ½
920 SQ.FT
2023
Saskatoon
Description
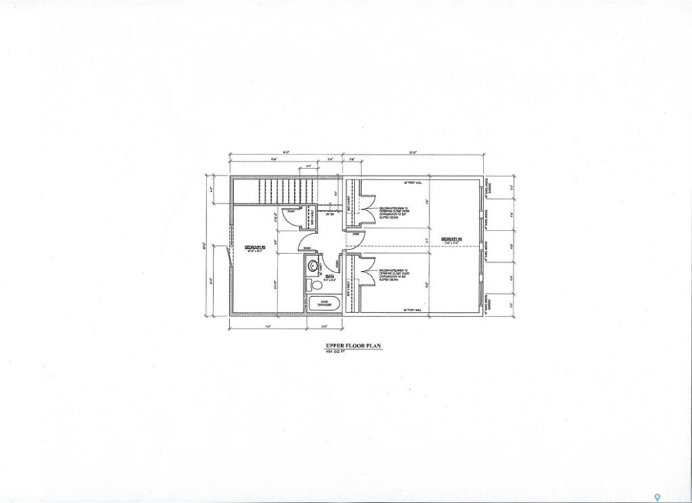
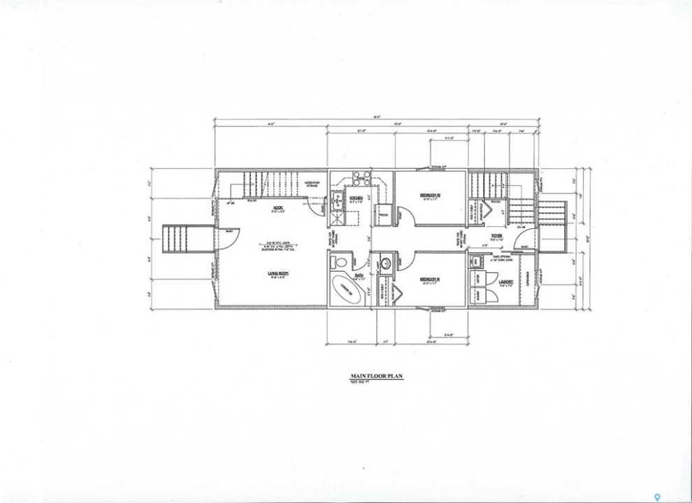
Wow! Ready to swing a hammer? This unique opportunity awaits. Most of the exterior and interior framing is done, Gas line in house , as well as Electrical rough-in and Water line. This unique opportunity in a rapidly developing part of Pleasant Hill offers up 6 total Bedrooms if developed with proposed plans. Loft design with bedrooms upstairs and living room/kitchen on main. Basement offers separate suite with 2 bedrooms in full height basement. Start construction before the snow hits and build your Dream!!
Listing courtesy of Re/max Saskatoon
More Info
City: Saskatoon
Square Footage: 920
Year Built: 2023
Style: One ½
Type: House
Roof: Other
Exterior: Other
Heating: Natural Gas
Land Size: 3245.00
Total Acres: 0.0745
Listed By: Re/max Saskatoon


