Share this Listing
Location
Key Details
$16.00
Warehouse
7,920 SQ.FT
1946
Regina
Description
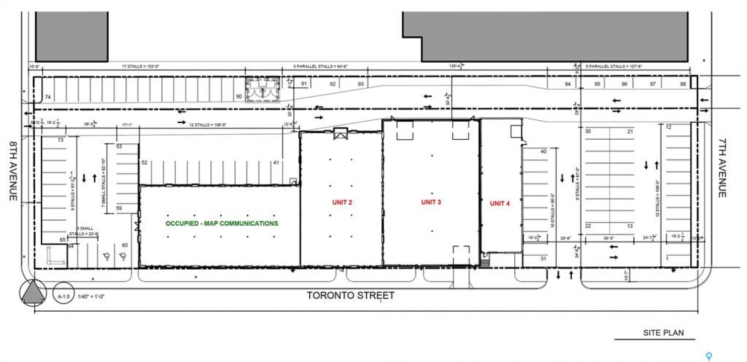
Historic and character-filled building (formerly Signal Industries) offers flexible spaces for lease ranging from 7,920 sqft up to 17,620 sqft. (when combined with two adjacent spaces to each side). This particular space is a wide open warehouse set up, ideal for storage or light industrial warehouse type of use with high ceilings and bright lights throughout. There are 2 bathrooms, office area, and a reception/customer receiving/pick up area. It also features 3 overhead doors and a loading dock. Up to 17 parking stalls(negotiable) and more if combined with adjacent spaces.
Listing courtesy of Re/max Crown Real Estate
More Info
City: Regina
Square Footage: 7920
Year Built: 1946
Type: Warehouse
Heating: Other
Listed By: Re/max Crown Real Estate


