Share this Listing
Location
Key Details
$485,000.00
2 Baths
Detached
2 Storey
1,383 SQ.FT
2026
Tisdale
Description
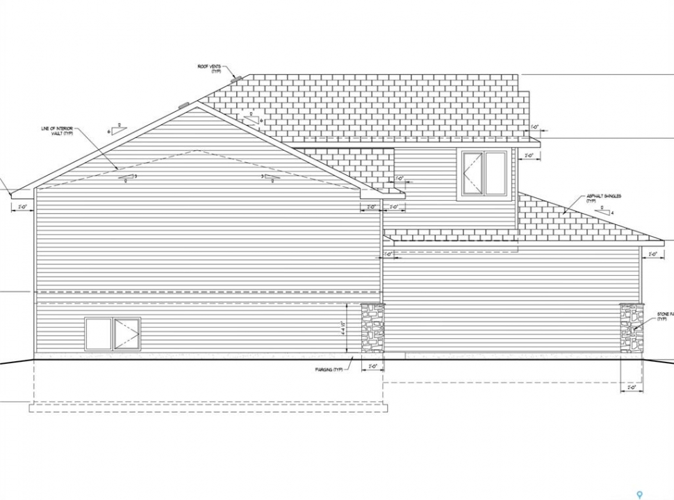
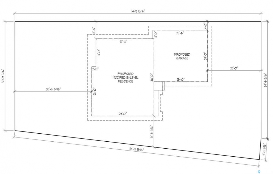
Scheduled for completion on June 30, 2026, 719 Doghide Drive offers a fresh take on modern living within Tisdale's newest premier development. This 1,383 square foot residence stands out with a dynamic two-story layout designed for both privacy and connection. The heart of the home is an expansive open-concept kitchen and dining area that transitions effortlessly into a bright living room, creating an ideal setting for hosting friends or relaxing with family. While the main floor houses two comfortable bedrooms and a full bath, the upper level is dedicated entirely to a secluded master retreat situated above the double attached garage, complete with a generous walk-in closet and a private four-piece ensuite. Outside, the property sits on a substantial 6,970 square foot lot, providing a blank canvas for your dream backyard and outdoor activities. Located just moments from the local elementary school and hospital, this home combines unique architectural details with the convenience of a family-centric neighborhood. Secure your place in this growing community and schedule a private viewing to experience this impressive floor plan firsthand.
Listing courtesy of Century 21 Proven Realty
More Info
City: Tisdale
Square Footage: 1383
Year Built: 2026
Style: 2 Storey
Type: House
Roof: Asphalt Shingles
Exterior: Siding,stone,vinyl
Furnace: Furnace Owned
Heating: Forced Air, Natural Gas
Features Interior: Air Conditioner (central),air Exchanger,sump Pump
Appliances: Garage Door Opnr/control(s)
Land Size: 0.16
Total Acres: 0.1600
Water Heater: Included
Water Softener: Not Included
Listed By: Century 21 Proven Realty


