Share this Listing
Location
Key Details
$19,900.00
Detached
Mobile Single Wide
0 SQ.FT
Redvers
Description
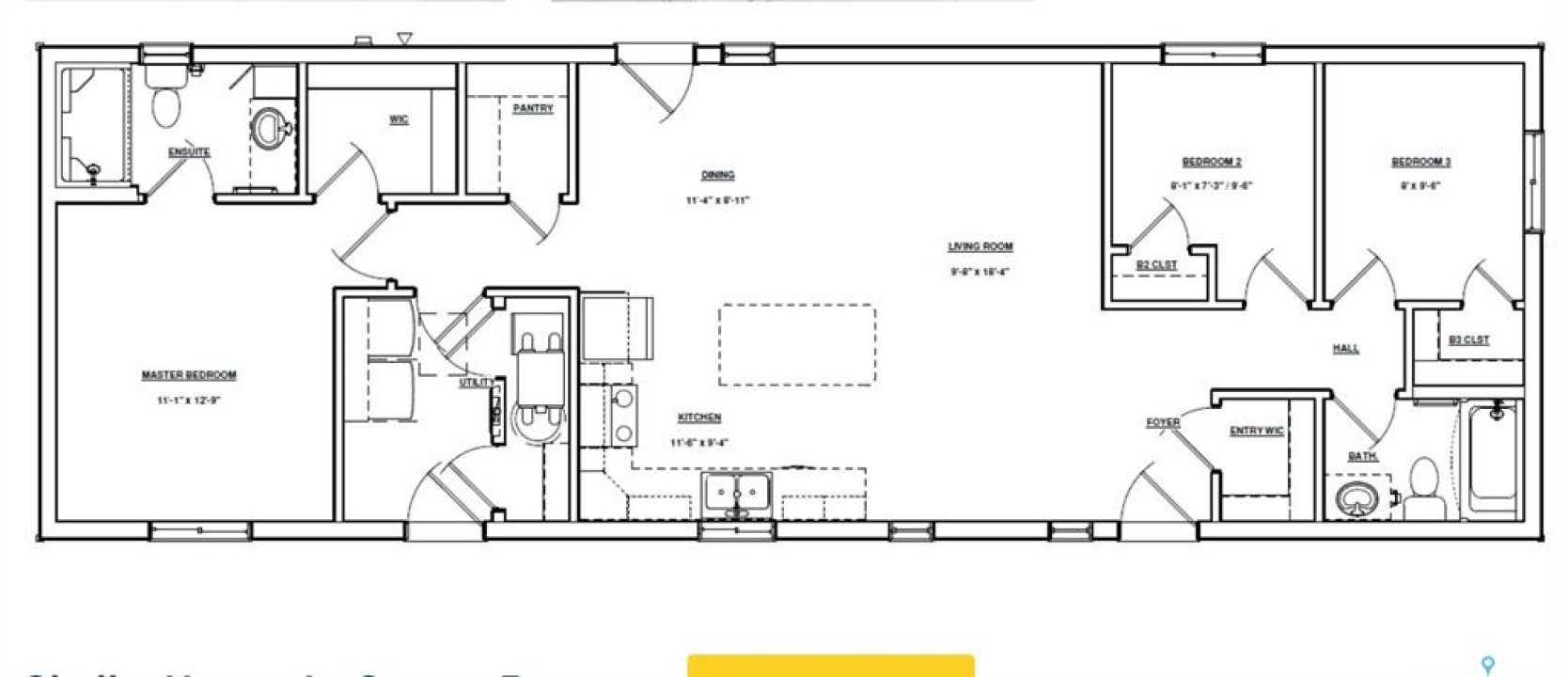
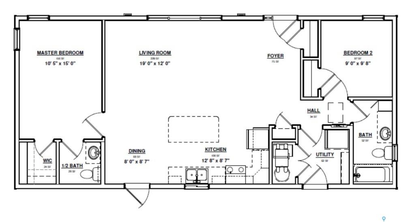
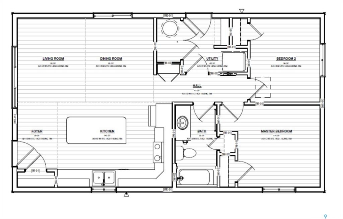
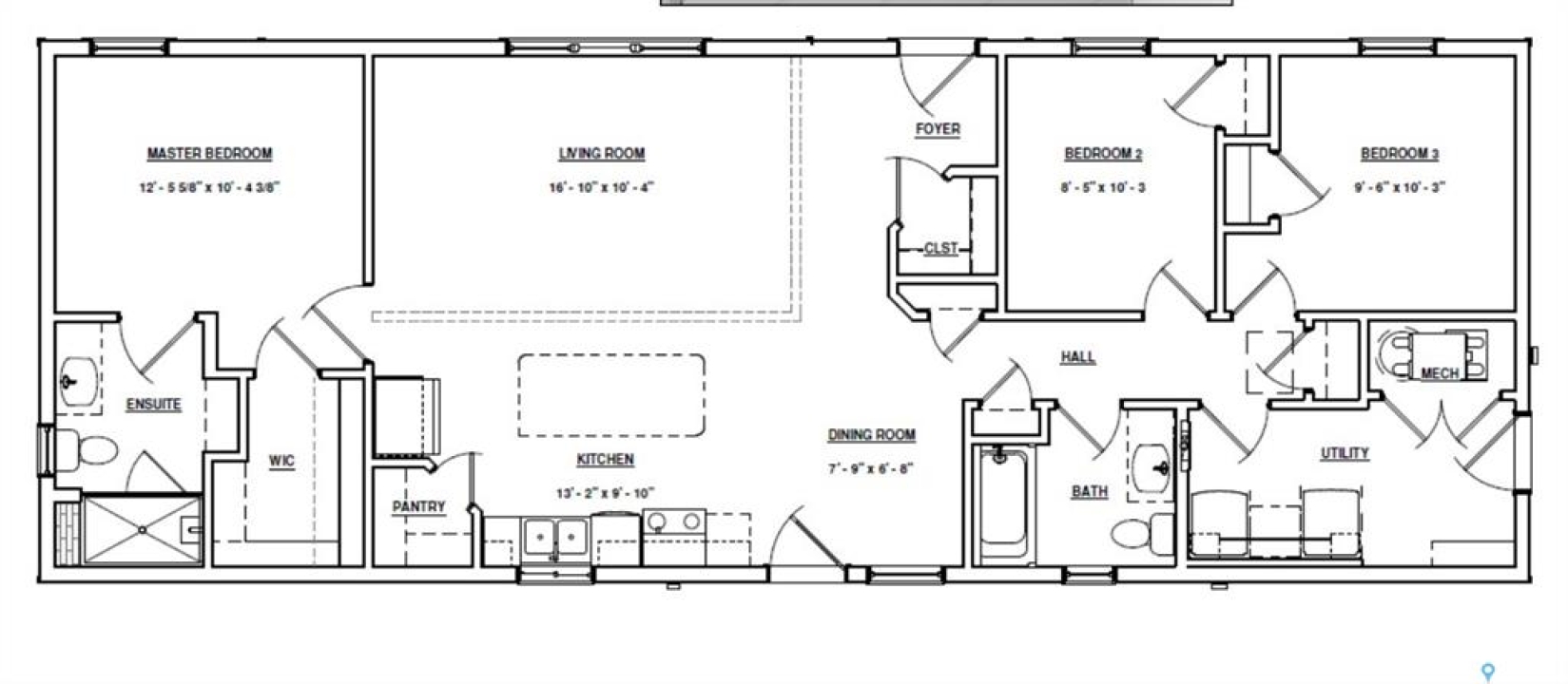
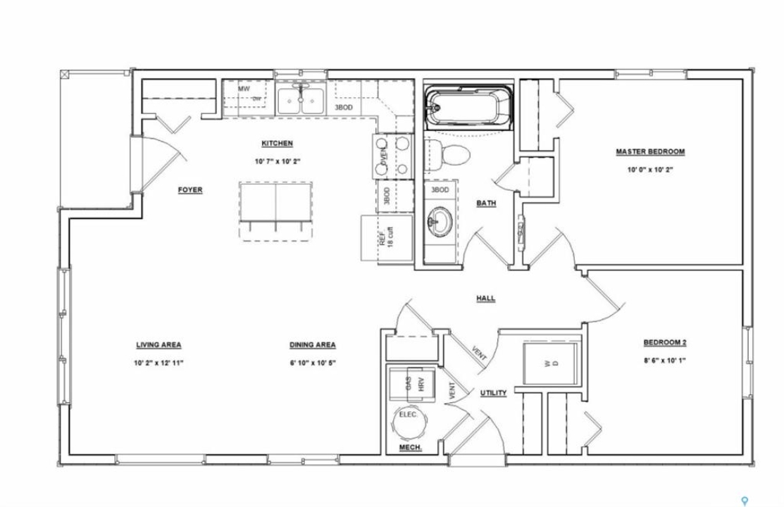
FULLY SERVICED LOT AT 3 MILLER ST. - Redvers, Sk Priced at a significant discount of developed cost at $19,900 - Realtor owned. Here's an opportunity to develop a fully serviced oversized 73' x 129' level lot, with concrete piles ready to accommodate a modular home of your choice. Lot is landscaped with timbers & gravel to denote the parking area. Natural Gas, Power, Town water & sewer ( 2 connections) are all on Site. Pictures shown are potential plans manufactured by Grandeur Housing Ltd., a premiere & reputable builder celebrating 50 years of providing quality, innovative & affordable modular homes. See grandeurhousing.com for numerous plans available. Contact Realtors for more information.
Listing courtesy of Performance Realty
More Info
City: Redvers
Square Footage: 0
Style: Mobile Single Wide
Type: Modular
Roof: Other
Exterior: Other
Heating: Natural Gas
Land Size: 9417.00
Total Acres: 0.2162
Listed By: Performance Realty


