Share this Listing
Location
Key Details
$999,999.00
Industrial
9,310 SQ.FT
1965
Regina
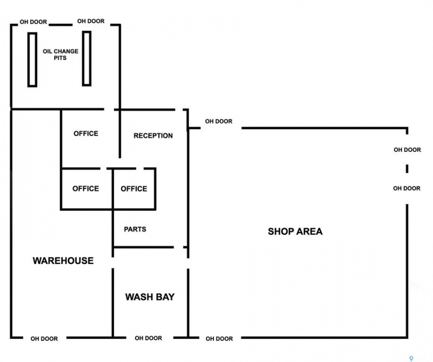
Description
This successful automotive business has been in operation for over 40 years and the PROPERTY is now available for purchase as the owners are retiring. The property is ideally equipped for a wide range of services including general mechanic work, oil changes, parts storage, and vehicle washing. It is also suitable for light industrial usage as general warehouse. The facility features approximately 1,500 sq. ft. of office and reception space, with the remaining area dedicated to the shop—complete with in-floor oil change pits. Spanning a total of 9,310 sq. ft., the building includes 8 overhead doors of varying sizes for easy access and efficient workflow.
Listing courtesy of Re/max Crown Real Estate
More Info
City: Regina
Square Footage: 9310
Year Built: 1965
Type: Industrial
Heating: Other
Land Size: 0.29
Total Acres: 0.2900
Listed By: Re/max Crown Real Estate


