Share this Listing
Location
Key Details
$530,000.00
Land
Moose Jaw
Description
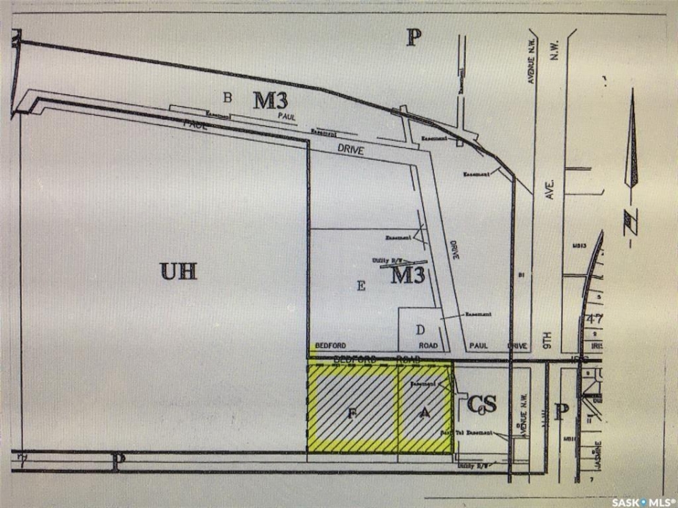
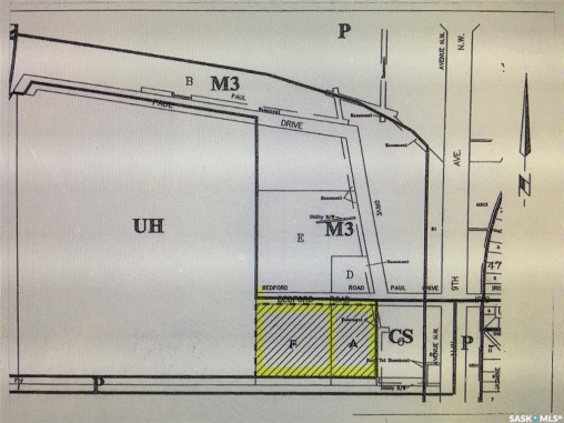
What a location! Zoned Commercial “C3” and just off 9th Ave, close to Highway #1 in the NW corner of Moose Jaw, this property is perfect for any kind of commercial or retail development. Parcel F is 5.3 acres, and is located directly West of Parcel A, see map. For more information call seller's agent
Listing courtesy of Royal Lepage Next Level
More Info
City: Moose Jaw
Type: Land
Bush: Some
Land Size: 5.30
Sloughs: None
Topography: Flat
Total Acres: 5.3000
Listed By: Royal Lepage Next Level


