Share this Listing
Location
Key Details
$556,600.00
2 Baths
Detached
Bi-level
1,335 SQ.FT
2025
Warman
Description
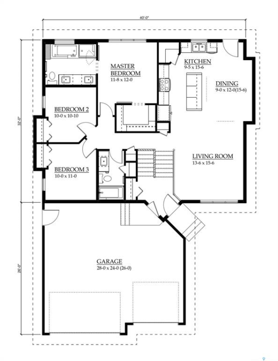
Welcome to this beautiful bi-level home located in Warman SK. With a well-designed layout and tasteful finishes, this house offers comfortable living spaces and a modern aesthetic. Spanning 1335 square feet, 9-foot ceilings both upstairs and downstairs, creates a sense of openness and spaciousness. With three bedrooms and two bathrooms, there is ample space for the whole family to enjoy. One of the standout features of this property is the three-car garage, providing plenty of room for parking and storage. The kitchen is a chef's dream, featuring a large island with an extended ledge and a walk-in pantry and all appliances. Quartz countertops throughout the house, complemented by undermount sinks and soft close cabinetry ensuring both functionality and adding a touch of luxury. The master bedroom includes an ensuite bathroom, complete with a tub and a tiled shower, offering a serene retreat. In the living room, dining room, kitchen, hallway, front entry, and bathrooms display beautiful vinyl plank flooring, combining style and practicality. The bedrooms are fitted with plush carpeting, providing comfort and warmth. The energy-efficient features of this house include LED light bulbs throughout, a high-efficiency furnace, and a power-vented hot water heater. As an added benefit, this property comes with a 10-year Saskatchewan New Home Warranty, giving you peace of mind. Don't miss the opportunity to view this exceptional home. Call today to schedule a viewing and see the quality for yourself! Front photo is of similar build, colors may vary.
Listing courtesy of Boyes Group Realty Inc.
More Info
City: Warman
Square Footage: 1335
Year Built: 2025
Style: Bi-level
Type: House
Roof: Asphalt Shingles
Outdoor: Other
Exterior: Siding,stone,vinyl
Furnace: Furnace Owned
Heating: Forced Air, Natural Gas
Features Interior: Central Vac (r.i.),heat Recovery Unit,sump Pump
Appliances: Garage Door Opnr/control(s)
Water Heater: Included
Listed By: Boyes Group Realty Inc.


