Share this Listing
Location
Key Details
$619,900.00
4 Baths
Detached
2 Storey
1,785 SQ.FT
2025
Regina
Description
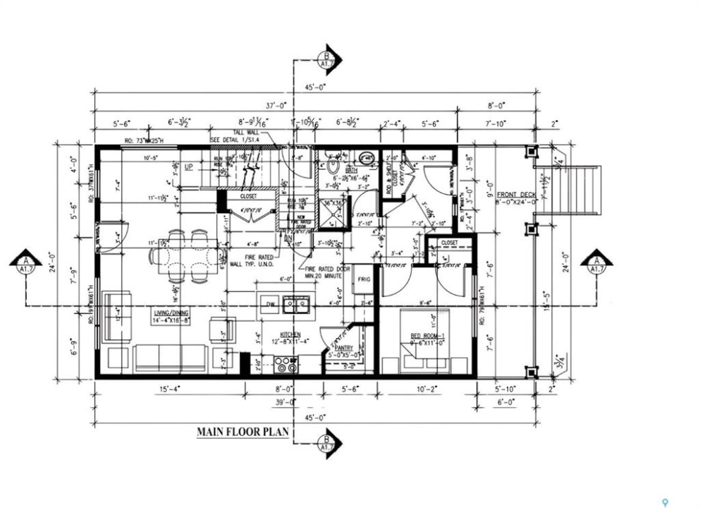
Discover this custom built brand-new 2025 two-storey home in Hawkstone, offering 6 bedrooms, 4 bathrooms, and 2 full kitchens across 1,785 sq ft of thoughtfully designed living space. The main floor features a bright living room, modern kitchen, and one bedroom with a 3-pc bath. Upstairs, you'll find a spacious bonus room, two secondary bedrooms, a full bath, and a private primary suite with its own 4-pc ensuite. The fully finished basement suite can provide additional income and includes kitchen, living room, laundry, two bedrooms, and a 3-pc bathroom. Buyers can take advantage of secondary suite incentive program if the possession is done before end of March 2026. Sitting on a large 3,675 sq ft lot with parking for two, this home is perfect for large families or those seeking multigenerational living. Located in Regina's growing Hawkstone community, you're close to parks, shopping, and everyday �conveniences.
Listing courtesy of Exp Realty
More Info
City: Regina
Square Footage: 1785
Year Built: 2025
Style: 2 Storey
Type: House
Roof: Asphalt Shingles
Exterior: Other
Furnace: Furnace Owned
Heating: Natural Gas
Land Size: 3675.00
Total Acres: 0.0844
Water Heater: Included
Water Softener: Not Included
Listed By: Exp Realty


