Share this Listing
Location
Key Details
$1,500.00
Office
2,322 SQ.FT
1923
Regina
Description
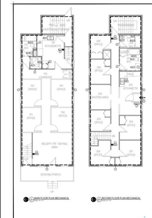
Newly renovated multi-unit building at 1817 Osler St, perfect for offices, studios, or small businesses. There are two separate floors/units available for rent. Main floor unit features 4 office rooms(each room available at $500 per month), waiting/reception area, 2 washrooms and kitchen/lunch area. The second floor features 6 office rooms(each room available at $350 per month), with 2 washrooms, waiting area, laundry area and a shared kitchen/lunch area. Full-floor rentals are also available at $2,000/month for the main floor and $1500 for the second floor. Each floor includes 2 parking spots, with additional street parking in front. Conveniently located near to downtown, local amenities, restaurants, and public transit.
Listing courtesy of Exp Realty
More Info
City: Regina
Square Footage: 2322
Year Built: 1923
Type: Office
Heating: Floor Model Furnace
Land Size: 3128.00
Office Area: 1200.00
Total Acres: 0.0718
Listed By: Exp Realty


