Share this Listing
Location
Key Details
$575,000.00
Land
Hoodoo Rm No. 401
Description
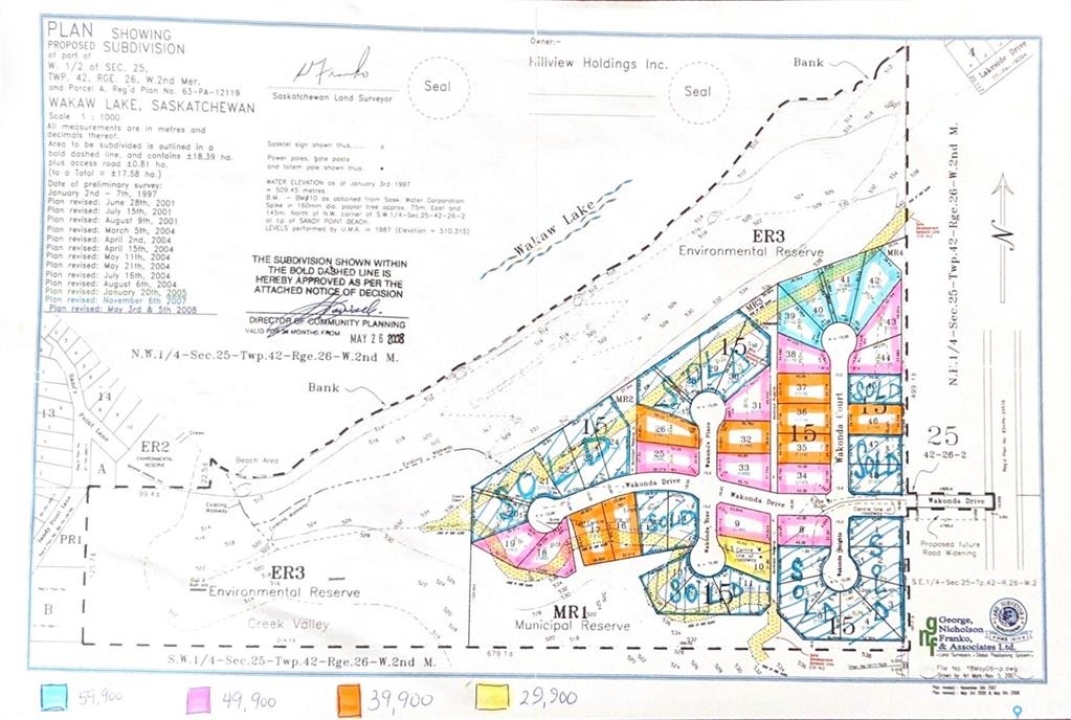
Multiple Lots Available as a Complete Package Builders, developers, and investors—this is your opportunity to secure 24 individual titled lots in the desirable Wakonda Ridge Estates. Located just minutes from town and just over an hour from Saskatoon, this area offers the perfect balance of convenience and retreat All 24 lots feature full services right to the frontage, including: Public water lines, Septic lagoon access, Natural gas, Power Enjoy easy access to the lake, nearby amenities in Wakaw and Wakaw Lake, and the simplicity of connecting services just as you would within city limits. Existing property reports, RM guidelines, development handbooks, and previous pricing information are all available to support your planning.
Listing courtesy of Royal Lepage Saskatoon Real Estate
More Info
City: Hoodoo Rm No. 401
Type: Land
Bush: Some
Sewage Disposal: Attached To Municipal
Topography: Other
Listed By: Royal Lepage Saskatoon Real Estate


