Share this Listing
Location
Key Details
$210,000.00
Business Brokerage
1944
Redvers
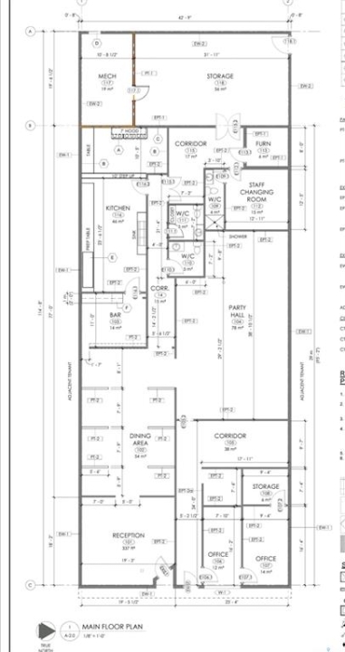
Description
7 Broadway Street, Redvers Licensed Restaurant and Banquet hall with commercial kitchen ready for new owner to step in and make it there own. 4500 sq ft of interior space accommodates a spacious kitchen, private booths and a banquet room plus a couple offices, 3 washrooms. Licensed for total of 75. Banquet space has separate entrance. Kitchen includes SS range hood with fire suppression system, Deep Fryer, Pandoor Clay oven, Pizza Oven, Large refrigerated prep table, 3 compartment dish washing station with grease trap., under counter fridge for bar and display beer cooler, Coffee machine with grinder. Includes 75" Samsung smart TV in Bar area and 42" LG flat screen TV in Reception area. Architect floor plan included in pictures. GREAT OPPORTUNITY TO WALK IN, TWEAK THE BRAND AND COMMENCE OPERATION. Call Realtors to schedule a private viewing.
Listing courtesy of Performance Realty
More Info
City: Redvers
Year Built: 1944
Type: Business Brokerage
Amenities: Interior Space, Other (see Realtor Remarks)
Heating: Floor Model Furnace, Other
Land Size: 5400.00
Retail Area: 4500.00
Total Acres: 0.1240
Warehouse Area: 722.00
Sale Type: Assets
Listed By: Performance Realty


