Share this Listing
Location
Key Details
$667,400.00
4 Baths
Detached
Bi-level Modified
1,435 SQ.FT
2025
Saskatoon
Description
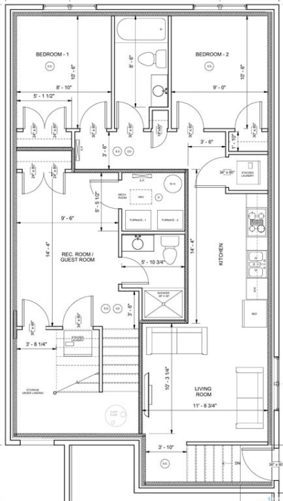
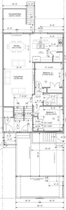
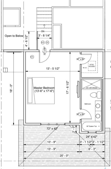
This modified bi-level home in Aspen Ridge built by SK Homes offers modern living with high-quality finishes throughout, including soft-close cabinetry and quartz countertops in every kitchen and bathroom on the main floor. The main floor features an open-concept living and dining space with a kitchen tucked to the side for added privacy. This floor also includes two bedrooms, and a 4-piece bathroom. The master bedroom (13'x17') sits on its own upper level with a walk-in closet and 5-piece ensuite. The basement is framed for two separate living areas: a large rec room and 4-piece bathroom for the main home, plus a 2-bedroom legal suite with its own kitchen, bathroom, and living area—ideal for rental income, mortgage help or extended family. All main floor kitchen appliances (excluding microwave) are included, and all basement suite kitchen appliances are included. The home also offers a double attached garage, a double concrete driveway to the suite entrance, and front landscaping. Upgrade-ready features are already in place, including a gas line for a future gas stove, a gas BBQ hookup on the deck, a gas line in the garage for a heater, and AC coils installed for an easier future air-conditioning upgrade. All qualifying rebates (GST, PST and etc.) are assigned to the builder unless otherwise stated. The SSI rebate will go to the buyer.
Listing courtesy of Realty One Group Dynamic
More Info
City: Saskatoon
Square Footage: 1435
Year Built: 2025
Style: Bi-level Modified
Type: House
Roof: Asphalt Shingles
Outdoor: Deck, Lawn Front
Exterior: Siding,stone
Furnace: Furnace Owned
Heating: Forced Air, Natural Gas
Features Interior: Natural Gas Bbq Hookup,on Demand Water Heater,sump Pump
Appliances: Fridge,stove,dishwasher Built In,garage Door Opnr/control(s),microwave Hood Fan
Land Size: 3629.94
Total Acres: 0.0833
Water Heater: Included
Listed By: Realty One Group Dynamic


