Share this Listing
Location
Key Details
$549,999.00
4 Baths
Attached
2 Storey
1,672 SQ.FT
2017
Regina
Description
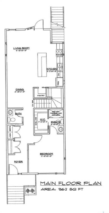
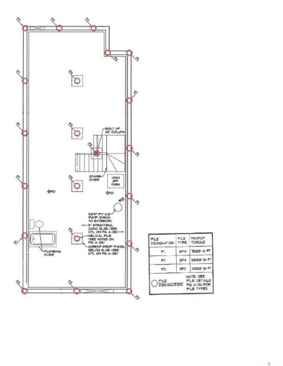
Meticulously maintained 2017 built duplex in the desirable Cathedral neighborhood, just a short walk to parks and greenspaces, featuring a 2 door double detached garage and a versatile layout ideal for investors or families. The property includes a 3 bdrm/3 bath main/basement unit, with one bedroom on the main floor and two in the basement, plus a self-contained 2-bdrm/1-bath suite on the second floor with its own entrance—each with separate utilities and laundry. Recent repainting gives it a fresh, near-new look, and it boasts spacious living with abundant closet and storage space, including a main bedroom with an ensuite and walk-in closet. The open-concept kitchen with a pantry opens to a large composite deck perfect for BBQs and gatherings. The basement offers two additional bedrooms with large closets, a sizable mechanical room for storage, and laundry with cabinets and countertop space. The second-floor suite features two bedrooms, two balconies, and outdoor BBQ areas for outdoor living. The owner built this as a forever place and features expensive upgrades that includes: construction on piles with a structural floor and void form under a 5-inch slab, $25,000 worth of solar panels generating 4.2 kW for each unit, A/C in both units, a dimple board foundation with sand backfill, standing seam steel roof with no exposed fasteners, and a garage with attic storage and stair access.
Listing courtesy of Re/max Crown Real Estate
More Info
City: Regina
Square Footage: 1672
Year Built: 2017
Style: 2 Storey
Type: Duplex (both Units)
Roof: Asphalt Shingles,metal
Outdoor: Deck, Fenced, Xeriscape
Exterior: Siding,stucco
Furnace: Furnace Owned
Heating: Forced Air, Natural Gas
Features Interior: Air Conditioner (central),heat Recovery Unit,sump Pump
Appliances: Fridge,stove,washer,dryer,dishwasher Built In,garage Door Opnr/control(s),microwave,shed(s),window Treatment
Land Size: 3182.00
Total Acres: 0.0730
Water Heater: Included
Water Softener: Not Included
Listed By: Re/max Crown Real Estate


