Share this Listing
Location
Key Details
$529,000.00
3 Baths
Detached
2 Storey
1,433 SQ.FT
2026
Saskatoon
Description
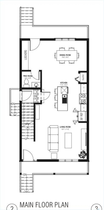
NOW ACCEPTING 5% DEPOSIT! Welcome to The Aspen Collection by Decora Homes, located in the highly sought-after neighbourhood of Aspen Ridge. The Tahoe model is a 2-storey home offering 1,433 sq ft of spacious, open-concept living on the main level. Designed for modern lifestyles, this home features 3 bedrooms and 2.5 bathrooms, including a 5-piece ensuite and walk-in closet in the primary bedroom. The second floor also includes a bonus room and convenient second-floor laundry. This model includes a separate side entry for a potential future legal basement suite — a great option for rental income or multi-generational living. Additional features include xeriscaped front landscaping, a concrete walkway from the sidewalk to the front door, and a 20x20 concrete parking pad with back alley access. Now available for Pre-Sale, with estimated completion in Spring/Summer 2026. Buyers can choose from three thoughtfully curated colour palettes: Harmony, Tranquil, or Horizon. This lot also offers the option to add the "Malibu Detached Garage," which features a ONE BEDROOM LEGAL RENTAL SUITE "LOFT" above the double detached garage. Add-on and upgrade options are available. Please contact your favourite Realtor today for more information and add-on pricing!
Listing courtesy of Realty Executives Saskatoon
More Info
City: Saskatoon
Square Footage: 1433
Year Built: 2026
Style: 2 Storey
Type: House
Roof: Asphalt Shingles
Outdoor: Xeriscape
Exterior: Other
Furnace: Furnace Owned
Heating: Forced Air, Natural Gas
Features Interior: Air Exchanger,sump Pump
Appliances: Garage Door Opnr/control(s),hood Fan
Water Heater: Included
Water Softener: Not Included
Listed By: Realty Executives Saskatoon


