MLS®# SK017524

2072 Princess STREET

$349,900.00 CAD
Regina
MLS®# SK017524


Location


Key Details

$349,900.00
2 Baths
Detached
2 Storey
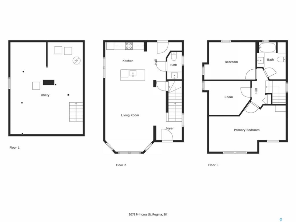
1,210 SQ.FT
1929
Regina

Description

Welcome to 2072 Princess Street, a home where thoughtful updates meet timeless Cathedral charm. This property has been lovingly refreshed with brand-new PVC windows (Sept 2025), a rebuilt deck, and a front yard that now features a beautiful garden bed to welcome you home. Wide open spaces inside, combined with the character you'd expect in this neighborhood, make it a truly special find. Step through the front door and you're greeted by a bright, inviting main floor. Durable luxury vinyl plank flooring, soft neutral paint, and pot lighting create a fresh, modern backdrop for everyday life. The kitchen is a highlight—sleek high-gloss cabinetry with gold accents, quartz counters, tile backsplash, and brand-new stainless-steel appliances make it both stylish and functional. The peninsula offers the perfect spot for morning coffee or gathering with friends, while a rare main floor two-piece bathroom adds everyday convenience. Upstairs, the spacious primary bedroom feels like a retreat with its custom feature wall, while two additional bedrooms provide flexibility for kids, guests, or a home office. The renovated four-piece bath has been beautifully finished with new flooring, modern fixtures, a tiled tub surround, and a crisp new vanity. The basement has great head height and endless potential for future development, with the peace of mind of new electrical right to the panel and all updated plumbing above slab. Out back, the yard is generous in size—ready for summer BBQs, a cozy garden retreat, or even the future garage you've always wanted. Set in one of Regina's most beloved neighborhoods, this home is more than move-in ready—it's the kind of place where you can immediately picture family dinners, evenings on the deck, and weekends spent exploring the Cathedral community.

Listing courtesy of Royal Lepage Saskatoon Real Estate


More Info

City: Regina
Square Footage: 1210
Year Built: 1929
Style: 2 Storey
Type: House
Roof: Asphalt Shingles
Outdoor: Deck, Fenced, Lawn Front, Patio, Trees/shrubs
Exterior: Siding,wood Siding
Furnace: Furnace Owned
Heating: Forced Air, Natural Gas

Features Interior: Floating Shelves,t.v. Mounts
Appliances: Fridge,stove,washer,dryer,dishwasher Built In,microwave Hood Fan,shed(s)
Land Size: 3125.00
Total Acres: 0.0717
Water Heater: Rented
Water Softener: Not Included
Listed By: Royal Lepage Saskatoon Real Estate